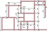
Planta de sobrado com Varanda Gourmet - Cód. 98

planta de Sobrado 3 quartos com Varanda Gourmet frente
planta de Sobrado 3 quartos com Varanda Gourmet fundos
10,0m
20,0m
200,0
3
1
3
2

Valores informados mediante sua solicitação, conforme normas do CAU.

Descrição do projeto

Este sobrado contemporâneo possui ambientes amplos e integrados, garagem para dois carros e uma agradável área de lazer com varanda gourmet e churrasqueira.
Também se encontram localizados no pavimento térreo sala de estar, sala de jantar integradas com a ampla cozinha, além de uma espaçosa área de serviço e banheiro social.
O pavimento superior é composto por dois dormitórios, um banheiro e uma suíte com varanda e closet. Também se encontra no pavimento superior uma sala intima localizada no mezanino com vista para sala de estar.
Planta de casa com facilidade para modificações.
Tamanho da casa: 9,12 metros de frente e 14,05 de fundos.
Sugestão de terreno para implantação: 10 metros de frente por 20 de fundos.

Veja se este projeto se adequa ao seu terreno

Valores informados mediante sua solicitação, conforme normas do CAU.

Detalhes do projeto

Para terrenos a partir de 10,0m x 20,0m

Área total da casa
200,0m² Área total a ser construída, exceto área de jardim
Tamanho da casa
Largura
9,12m
Frente do projeto sem os afastamentos sugeridos
Comprimento
14,05m
Profundidade do projeto sem os afastamentos sugeridos
Afastamentos sugeridos*
Frontal
3,25m
Distância do limite frontal do terreno até o começo da casa.
Fundos
1,75m
Distância do limite dos fundos do terreno até o fim da casa.
Lado direito
0,93m
Distância do lado direito da casa até o limite do terreno.
Lado esquerdo
0,0m
Distância do lado esquerdo da casa até o limite do terreno.
*Distância do limite do terreno até a parte mais próxima da casa, considerando como referência você dentro do terreno olhando para a rua

Valores informados mediante sua solicitação, conforme normas do CAU.

Modifique esta planta

Preencha o formulário e receba uma proposta sem compromisso

Faça seu próprio projeto

Preencha o formulário e lhe enviaremos uma proposta para executarmos o serviço

Buscar por outro projeto

Custo estimado da obra

Mais informações sobre o custo da obra
Escolha sua Cidade/Região
Item Valor
Mão de Obra
Material
Total

Construa você também a casa dos sonhos em 3 simples etapas:

1

Compre este projeto pelo nosso site. Você pode comprá-lo exatamente como ele está agora ou com eventuais alterações que você venha a precisar.

2

Receba o projeto completo por e-mail logo após sua compra.

3

Construa a casa. Contrate um responsável técnico pela obra e conte com nosso suporte técnico durante toda a construção da sua casa.

Mais de 5.800 clientes satisfeitos.

Garantia de aprovação (sob demanda) na sua prefeitura.

Possibilidade de alterações em qualquer projeto que comprar.

Apoio técnico de nossos arquitetos e engenheiros durante toda a sua obra.

Aproveite a nossa garantia de aprovação (sob demanda) do seu projeto em qualquer prefeitura do Brasil.

Nós confiamos tanto na qualidade dos nossos projetos que garantimos a aprovação de qualquer um deles na prefeitura da cidade que você pretende construir.

Se sua prefeitura pedir qualquer adequação no projeto, nós a faremos de graça. E mesmo se, esgotadas todas as possibilidades, a prefeitura não aprovar o projeto, nós devolveremos todo o seu dinheiro. Sem burocracia e sem demora.

Veja tudo o que está incluso no projeto

Perspectivas

Uma imagem virtual e colorida da fachada da sua obra.

Fachada

Constam as elevações do prédio, no mínimo de 2 (duas), com as especificações de acabamento e detalhes.

Planta de Layout - Proposta de Locação de Móveis

Constará a implantação do mobiliário, para o auxílio na decoração, e implantação de pontos de eletricidade e hidráulica.

Planta de Baldrame

É a planta de locação das escavações para locação da obra, consta a largura de alicerce e baldrame, bem como áreas possíveis de aterro.

Planta do Telhado

Desenhos que demonstram as águas (caimentos) do telhado. Especificações, beiras, calhas e rincões (onde houverem).

Planta de Corte

Constará os cortes, no mínimo de 2 (dois) para total compreensão do projeto, são definidas as alturas de forro, telhado e níveis verticais.

Planta Executiva

É a planta pronta para construir. Nela estão definidas todas as dimensões, especificações de acabamento de piso, parede e forro, níveis horizontais, vão de portas e janelas, locação e projetações de telhado. incluímos quadros de área, de acabamento e de esquadria.

Comentários do projeto

Adicionar novo comentário:
Sávio Nogueira
É possível modificar a faxada?
Soprojetos
Olá Sávio, Solicitamos que nos informe para email atendimento@soprojetos.com.br as medidas de frente e fundo do seu terreno e com detalhes como deseja modificar o projeto, para uma melhor análise de sua solicitação.
Ernane
O projeto arquitetônico acampanha o projeto estrutural, cortes e fachada?
Soprojetos
Olá Ernane, bom dia! Agradecemos seu comentário. Informamos que o projeto arquitetônico acompanha projetos de cortes e faxada. Mas o estrutural não acompanha. Disponha para demais dúvidas.-
Marcos Costa
O meu nome é Marcos Costa, sou do Ceará e moro na cidade de Juazeiro do Norte. Tenho um terreno de 10m de frente por 20m de fundo. Queria saber se posso fazer uma sala de estudo nessa área vázia da sala de estar no pavimento superior e se acrescenta algum valor nessa modificação.
Soprojetos
Olá Marcos, bom dia! Agradecemos seu comentário. Informamos que esta área está inclusa no projeto. O que você fará deste vazio fica a seu critério. Não é necessário modificação. Logo não é acrescentado nenhum valor. Caso o cômodo não existisse no projeto e você solicitasse o acréscimo aí sim seria estipulado um valor. Disponha para demais dúvidas.-
Edelson
Gostaria de saber se ficaria legal em um terreno de 15m de frente por 20m de fundo
Soprojetos
Olá Edelson, Agradecemos seu comentário, Informo que sim o projeto cabe perfeitamente em seu terreno, adquira já o seu projeto. Será um prazer ter você como um de nossos clientes.
Ricardo
Sabe se esse projeto se adequa ao código de obras de Salvador? Meu terreno está localizado no bairro de Itapuã.
Soprojetos
Para lhe informar se o projeto se adequá ao código de obra de Salvador solicitamos que nos envie para o email atendimento@soprojetos.com.br o código de Obra de seu município para que façamos a leitura. **
Franciele
Boa noite! Gostaria de saber quanto sobra de terreno no fundo, pois gostaria de por uma piscina e ter um espaço legal de circulação no fundo, pois tenho criança e eles adoram correr...desde ja agradeço a atenção.
Soprojetos
Olá Franciele, Agradecemos seu comentário Informo que a casa tem 9,12 metros de frente e 14,05 de fundos para um terreno de 20 metros de fundo sobram 5.5 metros para serem divididos entre os recuos frontal e fundo.
Liliane
ola! gostaria de saber se este projeto pode ser adaptado para um terreno de 7,5 por 18?
Soprojetos
Olá Liliane, Agradecemos seu comentário, Informo que infelizmente este projeto não se ajusta ao seu terreno, pois a casa tem 9,12 metros de frente e 14,05 de fundos. Neste caso sugerimos a você um projeto personalizado que é um novo projeto elaborado de acordo com desejado, acesse o link abaixo e veja como funciona e como adquirir um projeto personalizado. http://www.soprojetos.com.br/personalizado
David Marcelino
OLá, Qual a largura e comprimento da área construida desse sobrado? Obrigado.
Soprojetos
Olá David, Agradecemos seu comentário, Informo que a casa tem 9,12 metros de frente e 14,05 de fundos, com área total construída de 200 m². Disponha para quaisquer dúvida.
Bruna
Olá, Gostaria de saber se nesse projeto poderia acrescentar uma piscina e na parte vazia colocar mais um banheiro.
Soprojetos
Olá Bruna, bom dia! Agradecemos seu comentário! Para que possamos verificar a possibilidade de acrescentar a piscina e o banheiro. Solicitamos que nos informe com mais detalhes dimensões de frente e fundo do terreno para uma melhor análise de sua solicitação. Disponha para demais dúvidas.-
Joabe
Tenho um terreno de 09 X 20,gostaria de saber tinha condições fazer este projeto incluindo uma piscina?
Soprojetos
Olá Joabe, bom dia! Agradecemos seu comentário! Informamos que infelizmente para estas medidas do seu terreno não caberá este projeto. Tendo em vista que o tamanho da casa é de 9,12 metros de frente e 14,05 de fundos. Logo não será possível incluir a piscina. Agora caso deseje a redução dos cômodos para que este projeto se ajuste ao seu terreno. Podemos verificar a possibilidade de um projeto Personalizado. Caso tenha interesse entre em contato conosco em atendimento@soprojetos.com.br
Max
Senhores, bom dia. Gostaria de saber se é possível no vazio da sala colocar mais um quarto. Depois, se é possível, fazer uma grande varanda na parte de cima, a qual poderia ser aproveitada para festas etc. Nesse caso a escada continuaria dando acesso ao terceiro piso (varanda). Nessa varanda, gostaria de mais um banheiro e um escritório. Um abraço.
Soprojetos
Olá Max, Agradecemos seu comentário, Solicitamos que nos informe para email atendimento@soprojetos.com.br as medidas de frente e fundo do terreno, para uma melhor análise de sua solicitação.
Guilherme
14.7x14 se adequa??
Soprojetos
Olá Guilherme, Agradecemos seu comentário, Informo que infelizmente esse projeto não se ajusta as medidas do seu terreno. Sugerimos a você um projeto personalizado que é um novo projeto elaborado de acordo com desejado, acesse o link abaixo e veja como funciona e como adquirir um projeto personalizado. http://www.soprojetos.com.br/personalizado
Josito
Olá Boa noite, gentileza informar se todos os projetos (arquitetônico, hidráulico e elétrico) serão enviados também em DWG.?
Soprojetos
Olá Josito, Agradecemos seu comentário. Informo que os projetos de acordo com valor no site é em PDF tamanho A1, o projeto em DWG custa o dobro do projeto padrão ou seja o projeto arquitetônico cód. 98 em DWG custa R$ 1038,00, Projeto elétrico cód.98 em DWG R$ 519,00 e Projeto hidro-sanitário cód. em DWG R$ 519,00, para adquirir esses projetos em DWG, nos confirme para o email atendimento@soprojetos.com.br para enviarmos link de compra com valor correspondente.
Antonio
Bom dia , gostei muito desse projeto e gostaria de saber se tem como modificar para 4 quartos ? Quanta ficaria o custo do projeto e se precisa fazer alguma adequação para um lote de 10x30? Depois comprando esse projeto "completo" qual o custo que diminuo no momento de contratar um construtor?
Soprojetos
Olá Antonio, Agradecemos seu comentário. Informo que sim é possível modificar o projeto para 04 quartos, acesse o link abaixo e veja como funciona e como adquirir esse projeto modificado. http://www.soprojetos.com.br/ver/modificacao?project_id=98
Guilherme
Obrigado pelo retorno! Gostaria de saber se o preço inclui os arquivos DWG.
Soprojetos
Olá Guilherme! Agradecemos seu comentário. O projeto em DWG custa o dobro do projeto padrão, para adquirir, entre em contato conosco para que possamos enviar o link de compra com o valor correspondente, para o e-mail atendimento@soprojetos.com,br Disponha para quaisquer duvida.
Ladislau
Bom dia! Estou achando essa sala de estar pequena, tem a possibilidade de modificações para torná-la um pouco maior. Grato.
Soprojetos
Por gentileza, informe para o email: atendimento@soprojetos.com.br as medidas de seu terreno frente e fundos. para que possamos verificar a viabilidade de execução de suas sugestões de modificações.
Eder
Gostaria de ver algumas plantas baixas para casas térrea, contendo 02 quartos + 01 suite master cozinha americana um pequeno escritorio ou sala para estudos,01 banheiro social, garagem para 02 carros, varanda goumert Sendo que meu lote tem dimensões 10 x 25metros mais no municipio que eu moro tenho que atender algumas recomendações de distancias como laterais 1,5m,frontal e fundos.
Soprojetos
Olá Eder, De acordo com solicitado não temos nenhum projeto pronto, neste caso sugerimos a você um projeto personalizado que é um novo projeto elaborado de acordo com desejado, enviaremos uma proposta informando com detalhes como funciona, quais os custos e como adquirir um projeto personalizado.
Eder
casa terrea modelo platibanda
Soprojetos
Olá Eder, Acesse o link abaixo e veja algumas sugestões de projetos de casa térrea com platibanda. Disponha para quaisquer dúvida. Será um prazer ter você como um de nossos clientes. https://www.soprojetos.com.br/ver-projetos/terreos_platimbanda/plantas/?crawl=no
Eduardo
Qual o tamanho total do sobrado?
Soprojetos
O tamanho total do obrado é de 200,03m². ¨
Paulo Rogerio
bom dia, quero saber o que contempla este valor 570,90 , qual os projetos grato
Soprojetos
Olá Paulo Rogerio, O valor de R$ 570,90 é referente ao projeto arquitetônico que inclui :Planta de perspectiva; Planta decorada; Planta com fachadas; Planta executiva; Planta de baldrame; Planta com cortes; Planta de estrutura do telhado; Planta do telhado; Planta de esquadrias. Disponha para quaisquer dúvida. Será um prazer ter você como um de nossos clientes.
Roxana
Boa noite, meu terreno tem uma metragem de 10 x 20. Eu adorei o projeto, principalmente a área gourmet, existe a possibilidade de acrescentar nesta área uma piscina e banheiro externo? Gostaria de saber se é possível transformar a sala íntima em um escritório?Obrigada
Soprojetos
Sobra pouco espaço para o que você solicita. Tendo em vista que o projeto tem 15m de fundo, só sobram 5m para dividirmos entre os afastamentos de frente e fundos. ¨
Éder
Qria ver outros projetos de um terreno 10 x 25 (planta baixa com dois pavimentos sendo 1suite máster na frente dois dormitórios td no pavimento superior qro ver a planta baixa considerando as medidas de distâncias da testeira, dos fundos e laterais do terreno uma planta baixa com mais ou menos 12metros de comprimento
Soprojetos
Para estas medidas do seu terreno teremos os projetos disponíveis em nosso site e que seguem no link abaixo como sugestão: http://www.soprojetos.com.br/ver-projetos/sobrados_3-quartos/plantas/?crawl=no Caso algum destes projetos atendam as suas necessidades, solicite uma cotação para Modificação do projeto para que se ajuste ao que deseja. Caso não atenda as suas necessidades sugerimos que solicite um projeto Personalizado. O mesmo será elaborado do seu jeito ao seu gosto e de acordo com suas necessidades. Você pode solicitar um projeto novo, personalizado para você. Para solicitar e entender como funciona, acesse o link ao lado:http://www.soprojetos.com.br/personalizado. ¨
Pauloadelinocata
amei boa arquitetura
Soprojetos
Muito obrigado, estamos felizes por você ter gostado do projeto. Sempre que recebemos comentários como esse ficamos ainda mais motivados. ¨
Rafael
Boa tarde! Achei interessante o projeto desta casa. Possuo um terreno de 10m (frente) x 20 (fundos) e gostaria de saber se há possibilidade de alocar uma piscina. Se sim, poderia ser tanto na parte frontal como nos fundos? Obrigado!
Soprojetos
A casa tem 15m de comprimento sobram portanto 5m para os recuos frontal e fundos. Talvez caiba uma pequena piscina. ¨
Eder
teria como colocar a suite master para frente ??
Soprojetos
De acordo com a análise de nossos arquitetos, as alterações solicitadas são possíveis, porém, teremos que modificar esse projeto (o que gera um custo adicional). Nós lhe enviaremos uma nova proposta por e-mail, e ao aceitá-la daremos início a execução do projeto arquitetônico. Mais informações e proposta com os valores nós lhe enviaremos via e-mail. ¨
Jair Ribeiro
Boa tarde, meu terreno tem uma metragem de 12 x 30. me identifico muito com esse projeto a única coisa que pra mim teria que ser modificado é este vazio da sala de estar adicionando mais um dormitório pra aproveitar essa parte importante do projeto. obrigado
Soprojetos
Olá Jair Ribeiro, Sim é possível acrescentar um quarto no vazio da sala de estar, enviaremos uma proposta informando com detalhes como funciona, quais os custos e como adquirir este projeto com modificação desejada.
Eliomar
Poderia colocar a suite master na frente,no lugar do dormitório 2?
Soprojetos
De acordo com a análise de nossos arquitetos, as alterações solicitadas são possíveis, porém, teremos que modificar esse projeto (o que gera um custo adicional). Nós lhe enviaremos uma nova proposta por e-mail, e ao aceitá-la daremos início a execução do projeto arquitetônico. Mais informações e proposta com os valores nós lhe enviaremos via e-mail. ¨
João Paulo
Boa tarde, tenho um terreno de 10x25 e queria saber se com esse projeto de sobrado sobra espaço nos fundos para uma piscina?
Soprojetos
Sim, é possível adicionar uma piscina, fazemos apenas a locação. Para adquirir seu projeto acesse o link abaixo: http://www.soprojetos.com.br/carrinho/tipo/padrao/98
Edson
no nível superior no vazio da sala de estar é possível haver uma área útil?
Soprojetos
Olá Edson, Solicitamos que nos informe para o email atendimento@soprojetos.com.br qual cômodo deseja nesta área? e as medidas de frente e fundo do terreno, para uma melhor análise de sua solicitação.
Bruna
oi adorei o projeto no tamanho 10 x 25 teria como add closed nos 3 dormitorios e piscina ?
Soprojetos
Infelizmente não. Sugerimos um Projeto Personalizado baseado no projeto que você gostou. Para entender como funciona e solicitar o seu enviaremos link para seu email.
Andreia
Meu terreno é 12x25, tem como projetar algo no fundo?
Soprojetos
Sim, pode ser uma área de lazer ou edicula. Veja no link abaixo algumas sugestões de ediculas prontas que dispomos em nosso site http://www.soprojetos.com.br/ver-projetos/plantas?utf8=%E2%9C%93&q=ediculas&commit=Buscar **
Gustavo Borges
Seria possivel integrar na planta um escritorio?
Soprojetos
Por gentileza informe para o email: atendimento@soprojetos.com.br as medidas de seu terreno largura x comprimento para analisarmos quanto sua sugestão de modificação. ,se possível, informaremos os custos. **
Ivanete
Gostaria de saber o quanto custaria para inserir mais um quarto no lugar do vazio da sala de estar, e para posicionar o projeto mais a frente, para ficar com mais espaço e ter maior aproveitamento nos fundos do terreno.
Soprojetos
Por gentileza envie para o email: atendimento@soprojetos.com.br as medidas de seu terreno frente e fundos. para melhor analise quanto suas sugestões de modificações. Ficaremos no aguardo.
Ernesto
gostei muito deste projeto mais gostaria de faz umas modificação gostaria que todos os quartos com banheiro e na churrasqueira com mais um lavabo tenho uma ideia aquele corredor traz da cozinha poderia ser usado para acrescentas estes banheiro e o meu terreno tem 23 por 11.10 sendo 5 metros de recuo na frente 3 metros a trás e 1.5 ao lado esquerdo aguardo retorno em breve
Soprojetos
Suas sugestões de modificações são possíveis de serem executadas. Para solicitar seu projeto modificado enviaremos link para seu email
Adriano
Tem como fazer os recuos com 2,00m na frente e 3,00 nos fundos?
Soprojetos
Olá Adriano, Pedimos que informe para o email atendimento@soprojetos.com.br as medidas de frente e fundo do seu terreno, para uma melhor análise de sua solicitação.
Lara
Eu terreno é 10x20 !
Soprojetos
Este projeto ajusta-se perfeitamente as medidas do seu terreno. Disponha caso tenha alguma dúvida quanto ao procedimento de aquisição do projeto que lhe agradou. ¨
Lara
Adorei o projeto, gostaria de saber se é possível uma dispensa ligada a cozinha, neste espaço entre a cozinha e a varanda onde fica a porta de vidro!
Soprojetos
Olá Lara, Pedimos que nos informe para o email atendimento@soprojetos.com.br as medidas de frente e fundo do terreno, para uma melhor análise de sua solicitação.
Eduardo
tenho terreno em aclive 10x25 é possível fazer a garagem no nível da rua em baixo da casa ?
Soprojetos
Nossos projetos são para terrenos planos. Para que nós possamos realizar uma melhor análise de sua solicitação. Peço que nos envie por gentileza o levantamento topográfico de seu terreno. ¨
Joselto
gostaria de saber se este projeto de sobrado se enquadra na medida de 10m de frente por 20 de fundo
Soprojetos
Olá Joselto, Sim o projeto cód. 98 cabe perfeitamente em seu terreno, adquira já o seu projeto. Será um prazer ter você como um de nossos clientes.
Bruno Freitas Da Silva
olá boa noite tem como vc me mandar um desenho ou rascunho de como vai ficar o projeto que eu pedi pra modificar
Soprojetos
Olá Bruno, As modificações são realizadas, após a aquisição do projeto modificado, de acordo com valor informado na proposta enviada para seu email. Disponha para quaisquer dúvida.
Carlos Soares
teria possibilidade de edificar uma piscina ao fundo deste projeto?
Soprojetos
Depende de qual a medida do seu terreno. Para melhorar seu atendimento quanto a sua solicitação pedimos que nos informe: Qual o tamanho do seu terreno (largura frente e comprimento)? ¨
Marcio
sou de aracaju e gostaria de fazer um orcamento com essa fachada sendo que meu terreno e de 13.5frente, 25 de fundo com recuo frontal de 5 metros e laterais de 1,5 metro com total do terreno de 328 metros quadrado.e com um quarto com suite em baixo.
Soprojetos
Olá Marcio, De acordo com a análise de um de nossos arquitetos sua solicitação se enquadra em um projeto personalizado que é um novo projeto elaborado de acordo com desejado, enviaremos uma proposta informando com detalhes como funciona, quais os custos e como adquirir este projeto personalizado.
Gabriel
Boa tarde eu gostei muito do projeto, porém gostaria de saber se teria como vocês fazerem o projeto com um quarto em baixo.
Soprojetos
Para melhorar seu atendimento quanto a sua solicitação pedimos que nos informe: Qual o tamanho do seu terreno (largura frente e comprimento)? Pois ao acrescentar um quarto no térreo consequentemente aumenta o andar superior. ¨
Izaura Lourenço
Bom dia!!! Gostei muito deste projeto, porém gostaria de saber se é possível as seguintes modificações: meu terreno possui 10 m de frente e 20 de fundos, na cidade onde moro, a prefeitura exige 3 metros na frente de área sem construção, mesmo que seja para garagem, neste caso teríamos que entrar 1,5 com as garagens.Gostei bastante da fachada, mas na parte de cima gostaria que a suite master fosse na frente, e que os dois outros quartos fossem atrás com uma única varanda que dê acesso aos dois quartos, não quero sala íntima, o 2º pavimento gostaria que fosse distribuido entre 1 suíte, 2 quartos e 1 banheiro social. Caso seja possível, poderia me mandar o orçamento por favor.Desde já agradeço, Izaura
Soprojetos
De acordo com a análise de nossos arquitetos, as alterações solicitadas são possíveis, porém, teremos que modificar esse projeto (o que gera um custo adicional). Nós lhe enviaremos uma nova proposta por e-mail, e ao aceitá-la daremos início a execução do projeto arquitetônico. Mais informações e proposta com os valores nós lhe enviaremos via e-mail. ¨
Ana Claudia
OLÁ GOSTEI MUITO DO PROJETO,GOSTARIA DE SABER SE A SUITE MASTER PODE SER NA FRENTE, NO LUGAR DA SALA INTIMA SER UM ESCRITORIO
Soprojetos
Olá Ana Claudia, Solicitamos que nos informe para o email atendimento@soprojetos.com.br as medidas de frente e fundo do terreno, para uma melhor análise de sua solicitação.
Anderson
qual o custo desta obra do cod.98
Soprojetos
Com relação ao custo da obra. Não podemos dar um valor com precisão. Estes valores você terá com exatidão no Orçamento Quantitativo de um dos projetos que escolher. Ao alterar a planilha com os preços referentes as empresas de material de construção de sua cidade. Este é um bom método de você mesmo obter a precisão de quanto irá gastar com toda a obra caso você tenha a real intenção de adquirir um projeto. E informamos que você poderá adquirir primeiramente apenas o Orçamento Quantitativo e dependendo do resultado com os valores você poderá adquirir posteriormente o Projeto Arquitetônico e demais itens opcionais presentes em nosso site! ¨
Anderson
ola meu nome e anderson eu tenho um terreno de 300m e quero construir esta projeto
Soprojetos
Olá Anderson, Solicitamos que nos informe para o email atendimento@soprojetos.com.br as medidas de frente e fundo do terreno, para uma melhor análise de sua solicitação.
Eduardo
Boa noite, gostaria de saber se posso diminuir as dimensões desse projeto, deixar em torno de 140m2. Desde já quero lhes dar os parabéns pelo site, muito bom.
Soprojetos
Desculpe. Infelizmente é inviável a adequação solicitada. ¨
Claudio
Olá, esse projeto possui telha cerâmica escondida pelas paredes ou é coberto por laje impermeabilizada?
Soprojetos
A casa é coberta com telhas de fibrocimento sobre laje. Disponha para demais dúvidas. ¨
Bárbara Reis
Bom diaa!! Queria saber se daria pra fazer um quarto no vazio da sala de estar?
Soprojetos
Olá Bárbara Reis, Informo que sim é possível, mas pedimos que nos informe para o email atendimento@soprojetos.com.br as medidas de frente e fundo do seu terreno, para uma melhor análise.

Dicas e orientações